Cara specializes in custom-designed rooms and homes, from top to bottom. She aims to help her clients achieve their dream spaces, with style and thoughtfulness. Whether she is consulting in the plans phase of a new home, or placing final finishing touches, she can guide her clients in all aspects of interior design. Her services include, but are not limited to, plan consultation, paint and finish selections, furnishings and accessories, window treatments, custom bathroom and cabinet designs, custom built-ins and custom furniture design. The end-result of a project with Cara will reflect her client’s vision and style, but be professionally executed, using the elements and principles of design.
New Construction | Remodels | Space Planning | Furnishings | Color Consultation | Finish Selections | Tile Design | Bathroom Design | Cabinet Design | Window Treatments | Lighting Selection


Custom Bathroom Designs








Living Room Furniture Designs





Bedroom Design and Planning






Custom Furntiture Design:





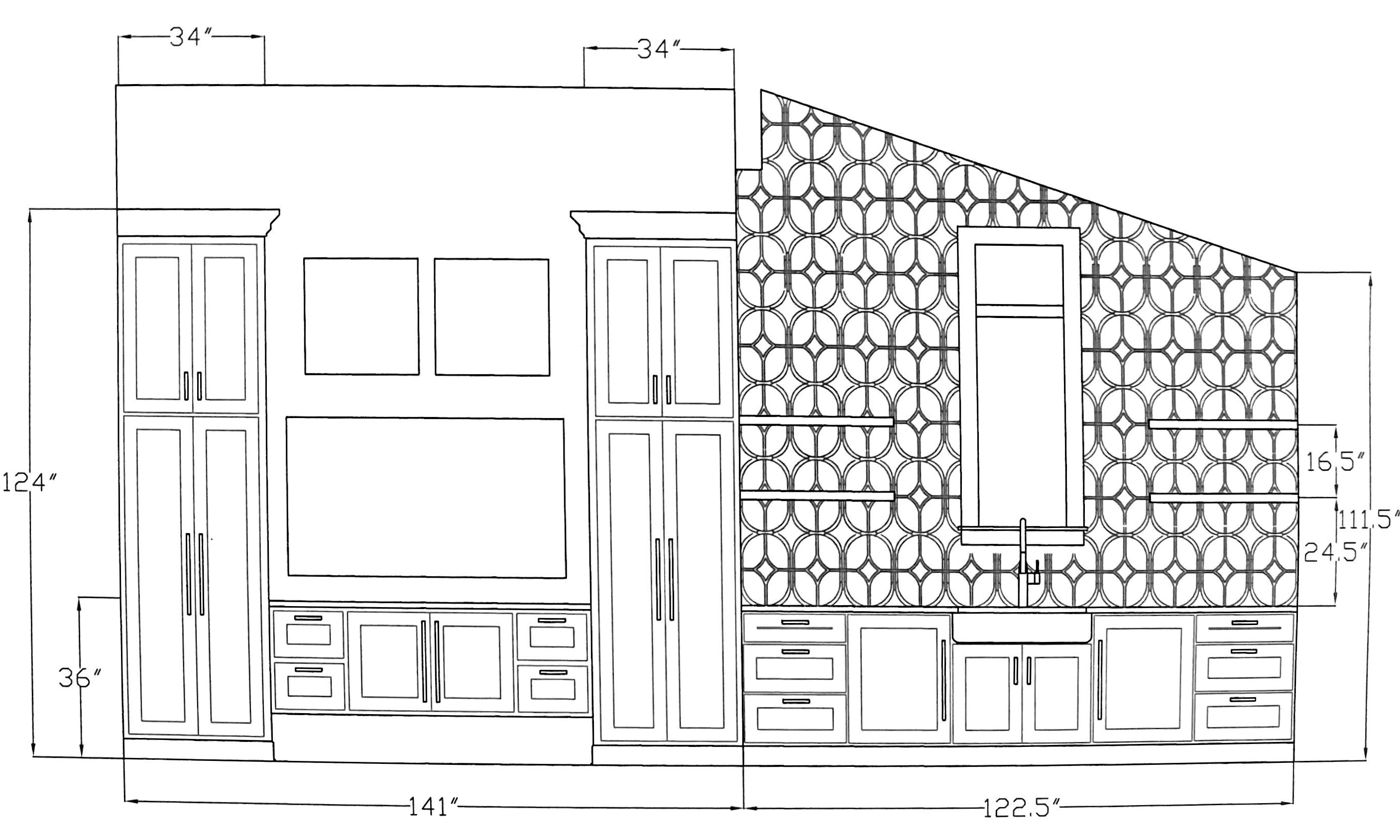
Aesthetic Kitchen Design and Planning


Tablescapes:


